Virginia Beach Activities


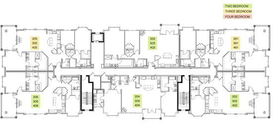
2nd, 3rd & 4th Floor
Printable Version (pdf)

old beach village first floor

 

virginia beach oceanfront condos
The LifestyleThe Lofts The FlatsThe Gateway The Team ContactHome